Abstract
Over the past two decades, the Greater London Authority (GLA) has pursued the delivery of high-density development in London in order to respond to population growth whilst protecting the green belt. Though high-density places have been associated with sustainable outcomes, it is well documented that residents interact less frequently and build fewer relationships in these environments. This can be particularly detrimental since social contact is fundamental for our general wellbeing and happiness. In response to this problematic, this study explored if and how we can design for social interaction in high-density housing. To do so, it adopted the process of inducting theory from case studies. Firstly, three case studies of recently completed developments were undertaken to determine whether social interaction was a driving factor in the design process, the type and location of social interactions, and clarify the influence of physical design on social contact in comparison to other factors. Three research methods were used to find answers to these questions including interviews with the residents and architects of the schemes, participant observation, and content analysis. These design-led schemes were chosen for investigation as award-winning developments which had received commendation for creating the foundations for a strong community. Next, a cross-case comparison was undertaken to identify hypotheses that addressed the research question and objectives. Providing support for existing literature in the context of high-density housing, it was discovered that limiting the number of apartments to a building allows for collective stewardship, and that communal areas shared by smaller groups are used more intensively. Moreover, combining shared paths and communal areas was observed to support fleeting interactions and helped to nurture a local sense of community. New findings included that externalizing the circulation spaces of multi-story apartment blocks can facilitate conversations between neighbors, and that bike stores can represent an epicenter for contact if internalized and co-located with shared paths. Notably, the impact of physical design factors was not deterministic.
1. Introduction
Since the turn of the millennium, the Greater London Authority (GLA), has pursued the delivery of higher density development to respond to population growth whilst protecting the green belt. In the most recent version of the London Plan, published in March 2021, this strategy fell under the banner of “making the best use of land” (p. 15). It has had a significant impact over the past two decades, and increasingly, high-density developments are now being accepted by local planning authorities with regularity (HTA, 2007).
Higher density, mixed use places have been associated with increasing active travel, burgeoning local economies, and providing the critical mass of people required to support investment in public facilities. However, forthcoming high-density developments have also been criticized for limiting interaction between residents and inhibiting the formation of strong social ties. The quality of internal circulation spaces is regularly curtailed in these schemes in an effort to maximize net to gross ratios, making them less conducive to sociability. Moreover, they often include relatively small outdoor communal areas which are overshadowed by the buildings that surround them, reducing their attractiveness to use.
Herein lies the research problem; in the case that administrative bodies continue to pursue higher density development, can this be delivered in a way that permits sociability and the development of strong communities, and if so, how? The importance of this subject is underlined by the COVID-19 pandemic which swept across the world in 2019 and forced the imposition of restrictions on social contact internationally. As a result, people were prompted to acknowledge the influence of interaction on physical and mental wellbeing, in addition to the value of weak social ties in enabling mutual aid. To capture these benefits in future high-density developments, it should be considered an imperative that they are not designed in a way that inhibits social contact.
In a search for answers, this paper adopted the research methodology of building theory from cases. Namely, a multiple case analysis of recently completed design-led developments in London was undertaken. Given the context of this study, density was understood using the GLA's definition—housing density—which is a measure of the number of homes per hectare. Moreover, high-density was considered to be around 250 dwellings per hectare. This is significantly greater than the judgements of previous academics in the UK but is reflective of current trends. Each of the developments selected were designed by award-winning architecture practices and had received commendation for their high-quality design, thus making them a suitable point of departure.
The next section provides an explanation of and justification for the adopted research methodology. In brief, the research methodology and the methods embedded within it were selected based on their capacity to respond to the research question and objectives (Table 1). The data collected for each of the case studies in relation to the research objectives is then presented, with analysis following. In addition to outlining the findings of the cross-case analysis, this section delineates hypotheses that respond to the research question and situates these findings within the literature. Finally, this paper is concluded by a summary which reflects on its findings, highlights the new knowledge that this study has contributed, and makes recommendations for future work.
Table 1
| Research question | Case study objectives |
|---|---|
| Can we design for social interaction in high-density housing, and if so, how? | (i) To identify if and how social interaction was considered in the design process |
| (ii) To determine the type, location and meaningfulness of social interactions | |
| (iii) To examine how physical design may help or hinder social interaction | |
| (iv) To understand the importance of non-physical (e.g., personal, socio-cultural, and temporal) factors on social interaction |
Research question and case study objectives.
2. Materials and methods
The purpose of this section is to describe and justify the selection of research methodology and the methods embedded within it. Details will also be provided regarding the epistemological perspective of the research, selection of study participants, and any ethical concerns. Efforts made to ensure the reliability of the research undertaken will be intertwined within each subsection.
2.1. Philosophical statement
This research was guided and influenced by the compatible philosophies of environmental probabilism and social ecology. Namely, that the physical environmental makes certain types of human behavior more probable than others, but a person's actions are ultimately determined by a combination of physical, personal, socio-cultural, and temporal factors. This blended worldview is ill-defined by existing research paradigms and can be understood as both postpositivist and constructivist in nature. On the one hand, it is suggestive that there does exist a common reality in which “causes probably determine effects or outcomes” (Creswell, 2003, p. 25), and the factors influencing a person's behavior can be determined and distilled through research with neutrality. Meanwhile on the other, it is recognized that a person's behavior cannot be understood through empirical or numerical measurement and requires a detailed understanding of their motivations (Table 2).
Table 2
| Postpositivist principles | Applicable? | Constructivist principles | Applicable? |
|---|---|---|---|
| Determination | Yes | Understanding and interpretation | Yes |
| Reductionism | Yes | Multiple participant meanings/realities | No |
| Empirical observation and measurement | No | Socio-cultural, and historical construction | Yes |
| Neutrality | Yes | Strong objectivity | No |
Breakdown of the postpositivist and constructivist principles applicable to the worldview of this study.
Adapted from Leavy (2017).
2.2. Research strategy
In recognition of the worldview adopted by this study and that little existing literature explains how physical design can encourage social interaction in high-density housing, the research strategy of theory building theory from cases was adopted. First pioneered by Eisenhardt (1989), many scholars have since practiced this research strategy which can be understood as the application of the multiple case study approach within a grounded theory methodology (Alzaanin, 2020). Theory building from cases combines the capacity of the case study “to gain an in-depth understanding of the situation and meaning for those involved” (Merriam and Tisdell, 2015, p. 19), with the ability of grounded theory to build theory inductively. Typically, research methodologies will deduce a hypothesis from a body of general theory at the beginning of the study to be tested. In contrast, the grounded theory approach aims to produce a hypothesis (or set of hypotheses) from the data collected that responds to the research question (Laws and McLeod, 2004).
Acknowledging the power of single-case studies to understand their subject in depth (Siggelkow, 2007), undertaking multiple case studies is deemed most effective when building theory. Firstly, this approach enables broader exploration of the research question and allows for comparison of findings between individual cases. Moreover, it improves the reliability of the study's findings, since the risk of making conclusions that are specific to the unique conditions of a particular case are negated (Yin, 2009). Only three case studies were undertaken as part of this paper. Conducting a greater number would have been preferable, however the resources required to deliver each in depth and the time constraints applied made it difficult to do so. The research process is exhibited in Figure 1, and its constituent stages will be described in the remainder of this chapter.
Figure 1

Illustration of the research process applied within this study (adapted from Eisenhardt, 1989 roadmap for building theory from cases).
2.3. Case selection
Following the problem definition, case studies were selected according to the “theoretical sampling” approach. In other words, they were determined based on their likelihood to address the research question, generate theory, and “offer insights into the phenomenon of interest” (Ridder, 2017, p. 286). This entailed choosing three high-density developments that had received commendation for their high-quality design and creating the foundations for a strong community. The three developments selected-−95 Peckham Road, Royal Road, and Wharf Road—are each introduced in Chapter 4. All of these schemes were situated in inner London, had a similar density of around 250 dwellings per hectare, and involved the delivery of a large number of units.
2.4. Data collection
Primarily, each of the case study developments were investigated through semi-structured interviews with architects and residents of the scheme. The focus of the interviews with architects was to understand the rationale behind the design of their schemes and identify to what extent facilitating social interaction was a driving factor. Conversely, interviews with residents were intended to determine the type, location and meaningfulness of social interactions they have with neighbors, and to understand non-physical factors that might influence their sociability. The questions asked of both architects and residents can be found in Table 1.
Semi-structured interviews embody a list of questions or topics to be explored, whereby neither the exact wording or chronology of the questions is predetermined (Merriam and Tisdell, 2015). They are particularly useful in qualitative studies, since their openness enables the interviewer to probe for a deeper understanding and ask for clarification (Barriball and While, 1994). Moreover, they recognize the subjective experience of respondents since interviewees are able to use their own words, something that is not afforded by a structured interview or survey. In addition to these advantages, the lightweight structure of semi-structured interviews ensures that the two-way communication between interviewer and respondent remains on topic, thus resulting in the collection of useful data (DeJonckheere and Vaughn, 2019). All interviews were conducted using video conferencing software, using plans of the development as prop from which to facilitate the conversation. Each conversation was recorded and then transcribed to allow for post-interview data analysis.
Notably, interviews represented just one of three research methods used to investigate the case study developments. Content analysis and participant observation was also undertaken to support interview findings. When building theory from cases, the use of multiple data collection methods is considered to build validity in the hypotheses that emerge from the study (Zohrabi, 2013). Here, content analysis is used to define the systematic investigation of texts and audio-visual content sources from books, newspaper articles, blog posts, and web pages. Meanwhile, participant observation was guided by the methods of Gehl and Svarre (2013), which included the taking of photographs and reactive field notes.
Typically, studies that build theory from cases stop collecting data when theoretical saturation has been reached. Theoretical saturation describes the point at which the researcher has certainty that no new information regarding the topic under study would result from further investigation of existing cases, or the addition of new ones (Laws and Mcleod, 2004). Nevertheless, in this study time constraints determined the point of closure—an outcome that is not without precedent (Eisenhardt, 1989).
2.5. Overlapping data collection and analysis
A key feature of theory building from cases is overlapping data collection and analysis. This feature, known to grounded theorists as the “constant comparative method” (Glaser et al., 1967, p. 101), enables adjustments to be made during the data collection process. Making adjustments, which could include the addition of new cases or interview questions, allow the interviewer to further explore and evidence emerging themes in the data (Urquhart, 2012). Whilst contested, such an approach is deemed legitimate in the case of theory building research, whereby its aim is to study each case in as much detail as possible (Eisenhardt, 1989). In this study, initial interviews with residents from 95 Peckham Road highlighted the pervasive influence of social media groups on social interaction, a topic area that was later probed in interviews with residents of other cases.
2.6. Data analysis
Data analysis in studies that build theory from cases adopts a two stage process, with a “searching for cross-case patterns” following within-case analysis (Eisenhardt, 1989, p. 540). Taking the approach of Gersick (1988), descriptive and analytical case study write-ups were composed for each development in the first instance, using the words of research participants wherever possible. These write-ups were formed iteratively, being manipulated as new data was collected, and condensed versions of these are included in this document. In enabling patterns and themes regarding the impact of building form on social interaction to emerge from each case, these write-ups proved of great value before the search for cross-case patterns. In this search, themes or concepts that emerged from one case were then investigated in others and vice versa.
The process of coding played a key role in assisting the analysis of collected data including interview transcripts, field notes, texts, and audio-visual content. Simply, coding refers to “assigning some sort of shorthand designation to various aspects of your data so that you can easily retrieve specific pieces of the data” (Merriam and Tisdell, 2015, p. 173). In this research, coding was used to highlight data which referenced different themes and concepts concerning the relationship under study. Coded data usually took the form of sentences rather than individual words, and was assisted using nVivo, a qualitative analysis software.
2.7. Shaping hypothesis and enfolding literature
Throughout the process of data analysis, relationships between social interaction and the physical design of the developments under study began to emerge. In the shaping of hypothesis, constructs were first defined before being tested rigorously against each case study. The overarching principle applied was that of “replication logic.” According to Yin (2009) replication logic assumes that each case study is treated as an individual experiment which may or may not dispute a construct that has emerged from the data. Cases that directly support the definition of a construct build validity, whereas a contradictory case calls for its redefinition. To conclude the process, the hypotheses that emerged from the study were situated within existing literature.
2.8. Summary
This section has summarized and given justification for the research strategy of the study, which is centered around Eisenhardt's methodology of building theory from cases. Key principles of this approach including “theoretical sampling,” overlapping data collection and analysis, and the application of “replication logic,” have been explained. In the following chapter, the case study write-ups will introduce the developments under examination and detail the results from their analysis.
3. Results
This section represents the output to phase 4 of the research process and will set out the data collected for each of the case studies in relation to each of the research objectives. These included to identify whether social interaction was a driving factor in the design process, determine the type and location of social interactions, and clarify the influence of physical design on social contact in comparison to other factors. The data for each case study was collected using three research methods: interviews with the lead architect and residents, observation, and content analysis. This data will provide the basis for the cross-case analysis.
3.1. 95 Peckham Road
3.1.1. Introduction to the case
95 Peckham Road is a mixed tenure development of 33 apartments (including two social rented and six shared ownership properties) in Peckham, London that was completed in 2019 (see Figures 2, 3). Designed by Peter Barber Architects (PBA), the development includes a combination of typologies including a “tenement-style mansion block” parallel and adjacent to the street that rises to six stories, and a litter of maisonettes at its rear which enclose a small and slender courtyard space (PBA, 2021). Since the size of the plot is just 0.13 hectares, the residential density of the scheme is 254 dwellings per hectare, making it the densest of the three schemes studied. Following its completion, the development received high acclaim for the quality of its design, winning the New London Awards Housing category in 2020 as well as being shortlisted for the RIBA Regional Awards and the Peckham Architecture Award (Johnston, 2019; RIBAJ, 2020). 95 Peckham Road was of particular interest and relevance to the study because it had been reported that PBA made a distinct effort to facilitate social contact in its design.
Figure 2

View of front elevation from Peckham Road (Ravenscroft, 2020).
Figure 3

Location of 95 Peckham Road.
3.1.2. Design approach and intent
Peter Barber Architects report applying a common approach to all of their projects; to design street-based neighborhoods of medium-rise, higher-density housing which they endeavor to deliver through the use of houses instead of flats (Brown et al., 2018). Furthermore, by arranging their projects as a tight network of intersecting streets and spaces enclosed by rows of repeating narrow and articulated building frontages, they make an effort to concentrate public life (Brown et al., 2018). In designing such environments, the practice sees itself as a facilitator of social activity, but not the creator of it.
“We [PBA] never say that we create social interaction because we're not social engineers. What we try to do is provide the opportunity for and increase the possibility of social activity.” (Architect A, 2021)
One method in which PBA attempt to maximize density whilst concentrating public life is through minimizing internal circulation. In recognition that residents tend to interact with one another in circulation spaces most, the practice seeks to draw these interactions out onto the street, an environment they see as being hospitable for social activity.
“The circulation space is one of the most important spaces on the project where you get that social interaction. But we see the streets and the squares and the courts and so on as where we want our circulation to be … People are far more likely to interact and have a positive engagement in a street or in a square than in a corridor or door or a deck.” (ibid)
These principles led to the adoption of the mansion block typology at 95 Peckham Road. Mansion blocks are capable of achieving relatively high densities, include minimal circulation, and have regular points of access. PBA modified this typology by ensuring that each of the homes on the ground floor were given private access to the street or courtyard at the rear, thus maximizing the number of doors opening out onto the public realm, and further decanting circulation patterns from inside the building to the streetscape (see Figure 4). The upper apartments are accessed through a side entrance at the west of the building (six apartments), and the main entrance spills out onto the street (13 apartments). Excluding the top floor of the mansion block, the number of apartments is limited to three per floor.
Figure 4

Ground floor plan of 95 Peckham Road.
The most distinguishing feature of 95 Peckham Road is its form. The massing of the building gradually steps back from the pavement, and its façade has a notched profile reflective of a castle parapet. The purpose of these design interventions was two-fold. Firstly, it responded to the local context. The first two stories of the building align with the low-rise health clinic to the east of the site, and the top two stories align with the buildings to the west. Additionally, the notched profile of the roofline was believed to lessen its perceived height. Secondly, it created private outdoor terraces for the majority of the apartments within the scheme, the outcome being that just three of the 33 apartments are without a garden or roof terrace (PBA, 2016). To further enliven these spaces, the practice endeavored to locate living spaces adjacent to outdoor amenity spaces to ensure one permeated into the other:
“It's a well-used mechanism to put floor to ceiling glazing between your living and outdoor amenity space. It brings the outside in and increases the sense of space both inside and out. That's definitely something that we will always look to do, and it goes entirely with our ethos of trying to have a really positive, proactive connection to the public space.” (Architect A, 2021)
Prior to the buildings completion, PBA envisaged that the “terraces and balconies might have planters and pots with climbers, growies, trailing plants and trees in pots, surrounding pergolas, tables and chairs” (PBA, 2016, p. 32). It was hoped that such activity would animate the façade and create a playful image for passers-by along Peckham Road in the future.
Finally, as a general rule they apply to all their projects, PBA pay attention to the detailed design of public and shared spaces in order to create opportunities for people to engage with one another, whilst acknowledging that they have a secondary function as pedestrian routes (Architect A, 2021). Responding to this, planters, trees, recessed seating, and informal children's play features such as stepping stones were included in the design for the courtyard space at 95 Peckham Road. The architects, hoping that the courtyard would be used intensively by the residents, wrote in their planning application that “the space will be used for informal child's play as well as providing the opportunity for a tranquil moment to read a book on a bench in amongst the blossom trees” (PBA, 2016, p. 38). Ultimately the stepping stones and planters were not delivered (see Figure 5).
Figure 5

View of rear courtyard at 95 Peckham Road.
3.1.3. Living at 95 Peckham Road
Notwithstanding the density of the scheme, residents did not report feeling overcrowded. Its design splits the residents into four subgroups (courtyard access, street access, side entrance, main entrance), meaning their interactions are mediated. In addition, the large windows give each flat a sense of openness, and they are well soundproofed too, thus providing auditory privacy.
“Considering it's a high-density build, it doesn't feel overcrowded. It doesn't feel dark because the windows are large and we're not tripping over our neighbors.” (Resident C, 2021a)
“The sense of auditory privacy within our own houses, despite the fact that it's quite a high-density build, is really valuable … I'm not disturbed by the sound of my neighbors TV's or anything like that that reminds you that you live just on the other side of the wall to someone else.” (Resident F, 2021)
Whilst alleviating feelings of overcrowding, the compartmentalisation of residents was said to have an imperceptible impact on their inclination to take stewardship over their shared environment. Residents have mobilized to rectify building defects, but this was adjudged to have been more significantly influenced by the tenure of their homes and eased by the overall size of the scheme. Nearly all of the apartments are in shared or private ownership, meaning the residents are financially motivated to maintain the quality of their homes and feel a “collective responsibility to the building” (Resident E, 2021a). Moreover, as the development is just 33 apartments large, they find it relatively easy to collectively strategize solutions to significant or persistent concerns through the use of social media and video conferencing technology. Instead of seeing other residents as “anonymous people that live in the same building” (Resident A, 2021a), they are recognized neighbors.
“We would definitely not be in a WhatsApp group with 200 flats. If we lived in a massive development, I can only imagine that that wouldn't happen.” (Resident A, 2021a)
“There is definitely a sense that most people know each other on the WhatsApp group … I think a bigger group would have made that more anonymous.” (Resident F, 2021)
In addition to helping solve practical matters such as leaky rooves, substandard planting and faulty motorized gates, the size of the scheme has benefitted its sociability too. These online forums are used to share personal news, tools and ingredients, and organize events and exchanges that residents felt would not have occurred in a larger group size.
This digitally enabled conviviality is physically apparent in the use of the rear courtyard, which is the site of the most meaningful interactions between residents. Gardening, homeworking, and small social gatherings all take place there, however the frequency with which residents use the space is affected by their visual and physical proximity to it. One resident described a “scale of usage” dependent on a person's location in the development, a diagnosis which was confirmed by the experiences of other respondents:
“The design [of the space] works extremely well for courtyard residents because it brings them together all of the time. Then it works well but slightly less well for the shared ownership flats that face the courtyard because our entrance is right by the gate and we are very aware that it is there. And then slightly less well for the owners in the main part of the building that face the courtyard but their entrance is on the road because they have to come all the way around to access the courtyard.” (Resident F, 2021)
For the courtyard residents, the courtyard doubles up as an external circulation space, as well as a usable, social one. Over time, fleeting interactions between these residents have metamorphosised into meaningful relationships and they have begun hosting tea parties together on Saturday mornings. Those belonging to this micro-community reported having stronger connections between themselves than with others in the development.
Whilst the exposed brick walls and raw concrete details in the mansion block's internal circulation spaces are appreciated by residents, these narrow routes are monofunctional and “not the best for interacting” (Resident F, 2021). As such, residents belonging to upper flats have not united in the same way as the courtyard residents. However, there is one space within the mansion block which has provided a source of social contact for some of them—the bike store. This secure and communal facility, which is accessed off of the main lobby and can store 60 bikes, is at full capacity. Several respondents noted having regular, more meaningful conversations in this space with others, and some had even formed relationships as a result. Accessible to everyone, it seemingly allows residents from different parts of the development to cross paths. Moreover, it further concentrates activity in the main hallway which other residents use to access their apartments.
“I used to bump into another resident [in the bike store] every morning when going to work. I got to know him well and now we have drinks with him and his partner. Also, the bike store is shared with the whole building. The people who live in the courtyard do have to come round to get their bikes, but it does mean that you can interact with people there that you wouldn't bump into in the corridors. It's a very communal space.” (Resident A, 2021a)
To conclude, 95 Peckham Road provides an interesting insight into the workings of public-private interfaces. The street-facing ground floor flats and those facing the courtyard have equivalent dimensions, but the lived experiences of residents are diametrically opposed. Whilst Peckham Road, is a busy, noisy and polluted road, the courtyard is a tranquil, relatively inactive and secure space. The observed behavior of these residents was in direct response to the conditions of their environment. Residents in the rear flats leave their blinds open and utilize their outdoor amenity spaces, whereas those that face the street have blocked out their windows, and prefer not to dwell outside their homes. Interestingly, the comfort of residents facing the courtyard in leaving their largely glazed facades uncovered, in combination with the size of the courtyard, has an influence on the behavior of other residents when using it. Prior to these homes being occupied, people used the space to exercise. However, following their arrival and aware of the presence of ground floor residents, they no longer feel comfortable doing so. This emphasizes that the relationship between private homes and adjacent public or semi-public spaces is a bi-directional one.
3.1.4. Summary
Investigating the design of 95 Peckham Road highlighted that it was driven by the goal of sociability. A sense of community does appear to be developing within the scheme, however certain residents have developed stronger relationships than others, and the architecture cannot take sole responsibility for their formation. This case underlined the influence of home ownership on the inclination of residents to look after their shared environment, made a case for the delivery of high-density housing through smaller developments, and emphasized the impact of physical and visual proximity on the use of shared spaces. Unexpectantly, interviews with respondents also unearthed the value of well-designed bike stores as a source of social contact, and the bidirectional impacts of public private interfaces.
3.2. Royal Road
3.2.1. Introduction to the case
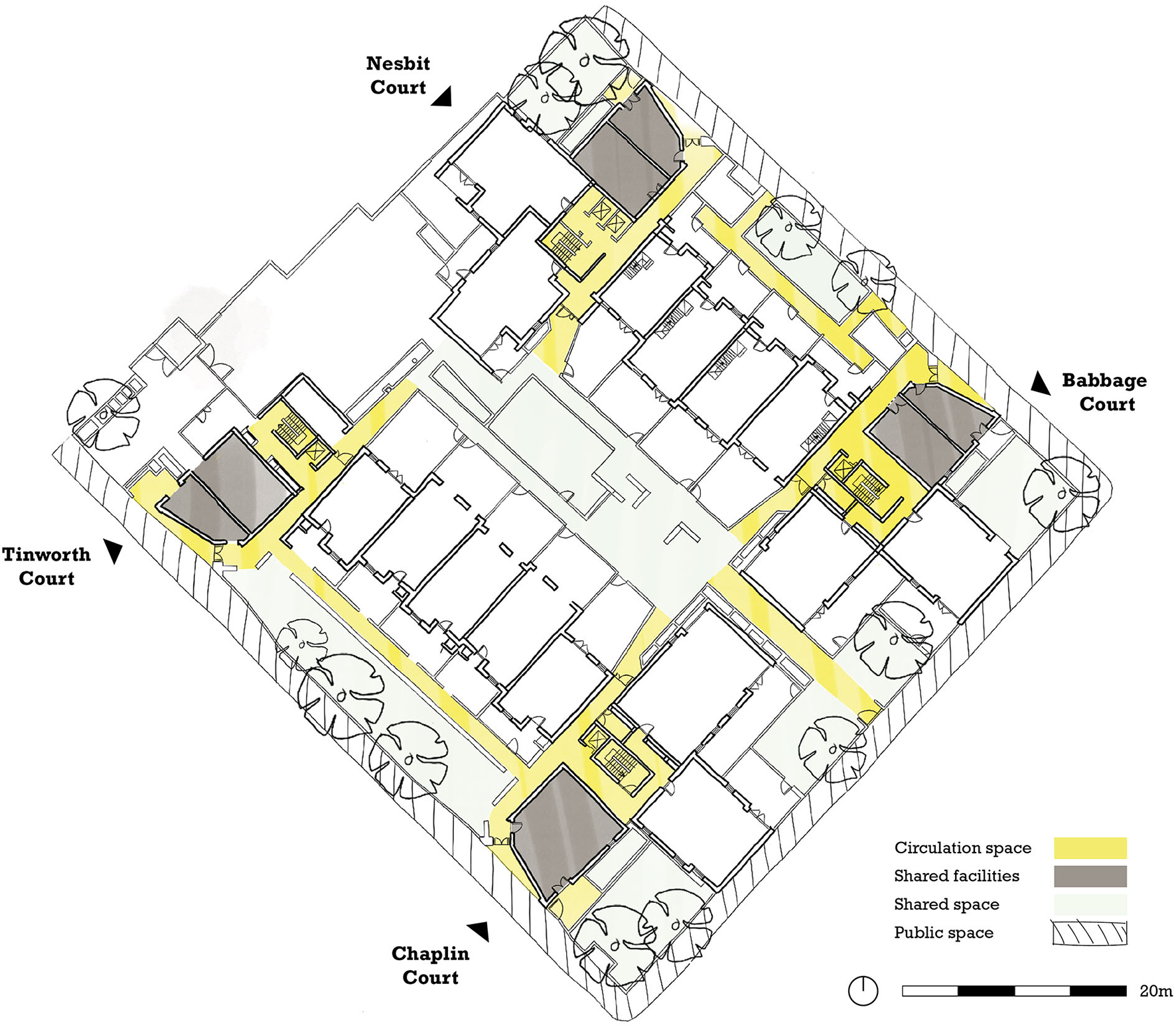
The square-shaped site of Royal Road is situated just to the east of Kennington Park in Southwark (see Figures 6, 7). The development, designed by Panter Hudspith Architects (PHA) includes 96 affordable homes (79% are social rent and 21% are shared ownership) and can be understood as a “a variant of a conventional courtyard block” (PHA, 2018, p. 8). The vast majority of these homes are accessed from one of the four cores at its corners, whilst eight maisonettes are huddled around a central courtyard on the ground floor. With a site area of just 0.42 hectares, the scheme has a residential density of 228 dwellings per hectare and surpassed Southwark's recommended density threshold. Nevertheless, its plans were accepted by Southwark who believed it to be “an exemplar of high-density development” (ibid, p. 31). Following the development's completion, it won multiple national awards for its design quality and was praised as “a real model for housing at high-density.” Moreover, in the eyes of PHA it had “created the foundations for a community, and what … will prove to be much loved homes” (Levitt and McCafferty, 2018, p. 161; PHA, 2018, p. 12).
Figure 6

Aerial view of Royal Road from the South (photo by Enrique Verdugo).
Figure 7

Location of Royal Road.
3.2.2. Design approach and intent
Upon visiting the site for the first time, Panter Hudspith became aware of the healthy and mature trees that lined the perimeter of the site. Perceiving the trees as “a gift to the neighborhood and the project” and capable of “establish[ing] an immediate character and setting,” the team set out to retain them (Guillery and Kroll, 2019, p. 197; Architect B, 2021). They succeeded in doing so by adopting a quartet of linked cruciform blocks, a layout which enabled the delivery of high-quality double and triple aspect homes and a shared courtyard at its heart (see Figure 8). Thought and care was channeled into the design of the courtyard space, which included space for children's play with adjacent benches “so that parents could sit and supervise their kids in the playground” (ibid). Ultimately the initial vision for the play space was not delivered as intended due to a lack of funding, materializing as a pit of bark chippings accompanied by two car tires (see Figure 9). Nevertheless, Panter Hudspith had hoped that the courtyard space “might help to create some kind of community cohesion” (ibid).
Figure 8

Ground floor plan of Royal Road.
Figure 9

View of central courtyard at Royal Road.
Other design decisions were also centered around reinforcing the buildings' relationship with the outdoors. The circulation cores were externalized in order to infiltrate these spaces with light and air, and private outdoor amenity spaces were collocated with living spaces in nearly every home. In justifying the provision of front and rear gardens for the maisonettes on the ground floor of the development, Architect B (2021) explained that:
“Having front and rear gardens is the best way to [promote social interaction]. When people are stopping and spending time in the gardens to maintain them, they have a greater chance of seeing a neighbor than when they are walking to or from their home.”
Panter Hudspith's general approach to designing buildings reacts to the steadfast repetition of modernist housing which “results in anonymity and ultimately loss of identity” (Guillery and Kroll, 2019, p. 193). Inspired by medieval towns whose form fosters a strong sense of community whilst allowing room for individual expression, they seek to design places which respond to the questions “Where is my home?” and “Where do I live?” (ibid, p. 194). The impact of this ethos on Royal Road was evident both in its approach to circulation and on its façade. Subtle differences in balcony positions, fenestration and brickwork details mean no two homes are the same. Meanwhile on the inside, suites of apartments were adopted over long corridors, the number of doors to a floor is limited to five, and each front door has its own unique position off of the stair core. Panter Hudspith accurately postulated that this might allow residents to take ownership over the space beyond their front door:
“What's really nice is [that] people put their shoe rack or park their pram out there or might get away with storing a bicycle. Many people have [also] hung plants on either side of their front door in this space. You wouldn't do this in a plasterboard corridor with carpet on the floor.” (Architect B, 2021)
3.2.3. Living at Royal Road
The impact of the artistic subtleties carved into the buildings' exteriors did not feature in conversations with residents. If they have any impact at all, it is likely to be an immeasurable and subtle one. Nonetheless, its approach to circulation did. In compartmentalizing the schemes into blocks and adopting suites over long corridors, residents did not complain of having to negotiate unwanted interactions and developed good relations with the small number of neighbors on their floor. Moreover, the design of these circulation spaces, which left them open to the elements and framed views over London at their corners, was understood to increase their sociability. Given that the vast majority of encounters between residents in these buildings reportedly takes place in these areas, their quality represents a great social benefit.
“This block does have a lot of natural light and air coming in which is very different to the speculatively built development we rented a flat in before … It was very warm and had very long corridors that were uncomfortable. It wasn't very sociable because the space was very tight and hot. Our building doesn't inhibit you from talking to your neighbors like that did.” (Resident A, 2021b)
As aforementioned, residents have expressed some degree of territoriality and ownership over internal circulation spaces in utilizing and decorating their doorways. However, few residents have collaborated to take care of the shared spaces within their block or belonging to the wider development. This type of collective stewardship was only observed in the development's smallest block—Babbage Court—which includes 20 shared-ownership apartments. The residents here have created a Tenants Association through which they discussed issues to do with the cleaning, maintenance, and the safeguarding of their shared facilities (Resident C, 2021b). This digitally connected association has also served a social function, facilitating a culture of sharing (Resident B, 2021a).
In comparison to the other blocks in the development, Babbage Court is especially well maintained. Elsewhere lifts have been disabled, confining disabled residents to their homes, bin store doors have been broken, inviting rats and foxes, and the security of bike stores is regularly compromised. In the eyes of the shared-ownership tenants, their collective stewardship is driven by their financial interest in safeguarding their properties, and eased by the relatively small size of their block which reduces its upkeep and facilitates their collaboration (Resident A, 2021b). Meanwhile, the poor level of maintenance elsewhere in the development is largely blamed on the quality of management by the housing association, Clarion. They have no onsite presence, manage the property remotely, and are slow to act on reports of anti-social behavior and vandalism.
“Unfortunately, there are a lot of things that get broken and there is no one to report it to. When you report it to Clarion they take their notes and that's pretty much the end of it.” (Resident D, 2021a)
The courtyard itself is very well utilized by children who use it to play football, cycle and run around. According to respondents, parents feel comfortable leaving their children to play within it unsupervised, thus allowing them unabated use. In addition to being a safe and enclosed space, it has a strong visual connection to many of the properties which allows parents to keep an eye on their children from afar. Nonetheless, the space is little used by older residents. To some, the children's use of it alone acts as a deterrence, meanwhile others felt its size and level of enclosure impacts its amenity value. In their downtime, these residents frequent their local parks or make use of their high-quality private outdoor spaces instead.
“That place [the courtyard], I see as for the children. If I am sitting there and they are playing football and they hit me, then it's my fault for being there. I have to be out of their way.” (Resident A, 2021b)
“No one would ever dream of passing time in [the courtyard]. You would choose to go to the park instead. It was never going to be used for someone to sit down, listen to the birds, and read a book. It's too small.” (Resident C, 2021b)
The rear gardens of ground floor apartments are situated adjacent to the courtyard space, meaning they experience identical environmental conditions. Nonetheless, the residents of these homes have capitalized on their license to manage these spaces. Each and every rear garden is filled with garden furniture, plants, children's toys, and other paraphernalia, all of which indicate to their intensive use. This is suggestive that the way the courtyard is used is influenced by its inflexibility and structure of governance. In addition to being a small space, it is divided into fragments by fixed benches, low-lying walls, trees and rocks, thus restricting its usability and limiting spontaneity and improvisation. Moreover, the number of apartments that have access to the resource has made it difficult to develop collective choice arrangements over its use, or for individuals to assume responsibility or territoriality.
The architect of the scheme argued that rear gardens represented one of the greatest sources of social interaction in housing developments, and so it has proved in the case of Royal Road. Over time, fleeting interactions between ground floor residents have transformed into stronger relationships and nurtured a sense of community between them. However, other residents are little known to them. Not only do they spend little time staying in the central courtyard, but they don't walk through it either. The layout of the development allows those living in the four cruciform blocks to walk to and from their homes without crossing the courtyard, thus removing the possibility of impromptu contact with ground floor tenants.
3.2.4. Summary
The design of Royal Road was driven by a desire to deliver high-quality homes that have an intimate relationship with the outdoors within the constraints of delivering a high-density scheme that preserved existing trees on the site. It has met these goals admirably, as is emphasized by the number of awards it has achieved. Regarding its sociability, it was found that externalization of circulation spaces has helped to transform them into sociable places, and that the rear gardens of ground floor homes have provided opportunities for fleeting interactions between these residents. Finally, the development's layout inhibits the potential for chance encounters between residents belonging to different parts of the development. This has made it particularly difficult for adults to form relationships, since they do not spent time in the courtyard either.
3.3. Wharf Road
3.3.1. Introduction to the case
Wharf Road is a tributary of City Road and marks the boundary between the London boroughs of Islington and Hackney. The development, which adopts the roads name, was designed by Pollard Thomas Edwards (PTE) and includes 98 apartments, predominantly made up of affordable housing (64 affordable rent, 15 shared ownership and 19 private sale) (PTE, 2015) (see Figures 10, 11). With a site area of 0.4 hectares, the scheme has a density of 234 dwellings per hectare, which is marginally higher than that of Royal Road (PTE, 2021).
Figure 10

View of shared space at Wharf Road.
Figure 11

Location of Wharf Road.
The layout of the development has been described as an “E-shaped” arrangement of four housing blocks (LB ISLINGTON, 2014, p. 6). The tallest of these flanks Wharf Road, meanwhile the other three are arranged in parallel, perpendicular to City Road basin. The block at the northern boundary is made up of three-story houses, whilst the other three blocks are comprised of flats, duplexes and maisonettes. The layout of the scheme creates publicly accessible gardens at the edge of the canal said to “establish an immediate sense of community for both occupants and neighbors,” making this high-density scheme an attractive subject for study (HDA, 2020).
3.3.2. Design approach and intent
The driving objective of the scheme was to capitalize on its prime setting adjacent to City Road Basin by creating views and access to the water for the incoming residents and the public alike. The design team at PTE “liked the idea of being able to offer this million dollar environment for genuinely affordable homes” and found a solution through investigating historic maps (Architect C, 2020).
“Historically you didn't have buildings lining the basin, you had structures perpendicular to it with wharves and inlets in between them where you would come in to unload your goods. When we saw this, we had this instant idea to create two garden wharves. This then created a long, extended frontage, giving us the opportunity to create lots of views onto the basin. These two ideas drove each other. We wanted to make sure that almost everyone had views of it, and certainly that everyone had access to it.” (ibid)
Given that targets for the number of homes, tenure split, and housing mix were fixed by the client at a very early stage, it was important to consider how the massing of the scheme could meet these whilst responding to its setting. At the south of the scheme sits a five-story electricity sub-station belonging to the national grid. Meanwhile to the north is Pickfords Wharf, a low-rise public housing development completed by Islington Council in 1990. The design team made an early “strategic decision” to shield the substation and restrict building heights along the boundary with Pickfords Wharf to protect its amenity (ibid). Thus, the parallel blocks perpendicular to the basin step up as you move from north to south. This opposes the approach that you would take if you were designing for sociability, since it limits the amount of sunlight penetrating the communal spaces argued to facilitate staying activities.
Alongside decisions concerning the schemes layout and massing, a strategy was devised surrounding its circulation to enliven its shared and public spaces. An effort was made to integrate routes and spaces by ensuring flats had their own front doors “wherever possible” and by carefully locating the entrances of cores and facilities (Architect C, 2020).
“We always try to locate our core entrances so that they relate strongly to the main spaces. You either come out in the garden, by the arches, or on the street. There is always a direct connection to shared space.” (ibid)
These ideas are clearly visible in the development's plans (see Figure 12). To enter its confines you have to travel through one of two double height arches from which cores, ground floor apartments and cycle stores can all be accessed. Then, if you walk through the arches, you find yourself in the communal courtyards which are lined with front doors along two of their boundaries. Despite the benefits of natural ventilation and light in internal circulation spaces, internal cores were preferred in some cases in the block along Wharf Road to “create a compact layout which prioritizes the homes themselves” (Architect C, 2020)
Figure 12

Ground floor plan of Wharf Road.
3.3.3. Living at Wharf Road
Reflective of the developments driving ethos, the double height arches are seen to capitalize on “opportunities to create big openings” in the main block by “open[ing] up glimpse views of the Basin edge from Wharf road” (PTE, 2015, p. 30). In addition to doing this successfully, the shared spaces are evidently attractive. Their orientation takes advantage of their setting, the possibility to sit down on a bench or lean on the waterside railings supports staying activities, and they are filled with socially attractive vegetation. Moreover, in spite of the decisions made surrounding the massing of the building, the courtyards still receive ample sunlight as they are not completely enclosed. Members of the public eat their lunch in these spaces, parents from the development across the road bring their children here to play, and even runners and cyclists are drawn to the water, unaware that it is a dead end.
“It is beautiful place to live, we're very lucky. And it's quiet as well, even though you're right next to city road. I felt like I was on holiday when I first moved here, all you can hear is seagulls!” (Resident G, 2021)
Though the development successfully provides new, much utilized and high-quality public realm, its level of activity negatively impacts some of the ground-floor residents by the canalside. Their homes have large, low-lying windows, and only narrow strips of planting or terraces separate their private space from publicly accessible routes. As a result, some residents are discomforted by strangers looking directly through their windows, and unnerved by the proximity of motorcycles driving past their homes to drop off food takeaways.
“A lot of people have started to have a picnic along the walkway as they can see they can walk right through. I think its lovely to see people do that but unfortunately some residents beg to differ. I suppose if you have a ground floor flat it can be quite intimidating.” (Resident G, 2021)
“I've been getting a little upset with people who walk past and look through the windows. They do it constantly. You also get food delivery couriers whizzing around here on their bikes. They've got no consideration for the people that are living here at all.” (Resident I, 2021)
Notwithstanding their slightness, the terraces are still attractive to residents as quiet and peaceful spaces that have views to the canal and receive sunlight throughout the day. They are well used, have proved highly interactional, and allow for individual expression. This evidence suggests that for the purposes of sociability, harsher transitions between public and private space can be less devastating to sociability when the public realm is chiefly a tranquil environment.
“We have neighbors over there with children who used to play with our dog. We got to know their parents through that and now we say hello to them whenever they walk past. It's really friendly.” (Resident C, 2021c)
The ground floor flats along Wharf Road exhibit the impact of sharp public-private transitions in locations of lower amenity and higher activity. Despite signs of life and use within them, one or two inset balconies have been fortified with chicken wire mesh to help increase these residents' sense of security. Aware of this, the chief architect of the scheme felt that “there are particularly instances of amenity for ground floor flats that are put under too much pressure and would probably have been better to be compromised from a planning perspective to improve the scheme” (Architect C, 2020).
Whilst used well by the public, the development's shared spaces are used more sparingly by people who live in the development. Many residents in the canalside properties reported regularly bumping into one another as they walked through these spaces, though they prefer to relax or host friends and neighbors in their own private amenity spaces. Moreover, parents do not allow their children to play outside unsupervised since there is no safety barrier along the canalside, illustrating that minor design flaws can have a major social impact.
“Not many kids that live here use the outdoor space to play. It's usually people from outside the development that come in, sit down, and play here. … There's no barrier on the canal and that's probably why other parents don't let their kids out. It's dangerous and you have to keep an eye on your children.” (Resident E, 2021b)
Similarly, the communal spaces are little frequented by residents of the main block who do not walk through them when traveling to or from their homes. Instead, their visits to these spaces are limited to summer evening excursions with guests. Highlighting the impact of the developments design, these residents reported interacting with others most frequently within the arches of the development. With natural light and air, they provide a more amenable place for a conversation than the circulation spaces inside their building which are tight and somewhat utilitarian.
Rather than one community developing at Wharf Road, interviews indicated that there are many. Firstly, the private and shared ownership tenants have created their own WhatsApp group, highlighting the somewhat imperceptible but real boundary around this group of residents. According to one interviewee, this group formed because the issues encountered by private and shared ownership residents are disparate to those of social tenants. Owing to its size of around 40 apartments, it is principally used for more formal conversations about property maintenance, though it has facilitated new connections and weak ties between residents also.
“We have a WhatsApp group with all the shared and private owners … It's mostly about house stuff. You never ask, “Hey people, how are you?” because there are like 40 people there. We are friendly but it's about common issues admin stuff.” (Resident B, 2021b)
“I met my neighbor through the WhatsApp group and now we've become friendly. I'll go to his house for dinner every once in a while, or we will meet for a beer.” (ibid)
Concurrently, the frequency of casual interactions between some of the canalside, social tenants has resulted in the formation of an informal community of about 15 people. This assembled naturally through greetings, short conversations and acts of kindness. None of the residents from the main block, who are indistinguishable to those living by the canal from the public on their infrequent visits the development's shared spaces, are part of this community. Nevertheless, it is felt that the size of the development makes it difficult for an intimate community to encapsulate everyone anyway.
“Absolutely [there is a sense of community]. There are about 15 of us by the canal who are very friendly. We do nice things for each other too. There are two girls opposite who are having babies and my wife is crocheting them both some little blankets” (Resident I, 2021)
“Because there are so many people in the development, I think it's hard to have a close community that includes everyone. In the previous development I lived in everyone knew everyone but there was only 50 flats there.” (Resident D, 2021b)
3.3.4. Summary
In their design of Wharf Road, PTE sought to create views and access to the water for the incoming residents and the public alike. This was achieved in reality, but its arrangement has proved more sociable for the canalside residents and leaves those living in ground floor flats feeling exposed and discomforted by the level of activity outside of their homes. As in the case of Royal Road, residents use the shared spaces in their development little, and prefer to spend time in their own private amenity spaces. Moreover, homeownership appears to be the driving factor behind stewardship over communal spaces, rather than physical design.
4. Discussion
This chapter represents a summary of the final three elements of the research process including the cross-case analysis (5), shaping of hypothesis (6) and enfolding literature (7). These three steps represent the apogee of this study which provides an interpretation of the case study findings and addresses the research question and case study objectives (Table 1). Through the cross-case analysis, a search was conducted for patterns in the data by comparing findings between cases. In order to understand and define these patterns in the shape of hypotheses, the principle of “replication logic” was applied (Yin, 2009). Using this logic, each case study was treated as an individual experiment which either confirmed, disputed or clarified an explanation for a pattern in the data. Situating this study's conclusions amongst previous research provided support for past literature in certain instances, elaborated on it in others, and also identified novel theory. At the end of this chapter, research limitations will be outlined to provide greater context for the findings.
The evidence in Chapter 4 provided support for the theories of environmental probabilism and social ecology which underpinned the worldview of the study. This worldview assumed that human behavior is influenced by physical design, but recognized the impact of socio-cultural, personal, and temporal factors (Zimring et al., 2005; Flowerdew, 2009). Influential socio-cultural factors included social media and the quality of management of communal spaces. The former facilitated a culture of sharing, the creation of new relationships, and reduced anonymity, whilst the latter affected the cleanliness and perceived safety of shared spaces, thus influencing their use. The impact of personality traits was also recognized by both architects and residents. Some individuals are more inclined to engage with residents or likely to conduct certain activities. Unless you ride a bicycle, you're not going to be subject to fleeting interactions in the bike store. Likewise, if you don't enjoy gardening, you aren't going to spend time outside your home with a watering can. Nonetheless, the role of the built environment was not limited to providing “affordances” for action, as is indicated by the possibilist doctrine (Lang, 1987). Specific interventions were found to increase the possibility for social activity.
In agreement with Ng (2009), this study found that developments of the same density can be delivered in several different ways. This highlights the importance of studying how the physical design of high-density developments can influence human behavior. Each development delivered around 250 dwellings per hectare, but their form varied greatly (Figure 13). Additionally, 95 Peckham Road and Wharf Road exhibited that low-rise building typologies can be delivered in high-density schemes so long as they are accompanied by multi-story apartment blocks. This adds nuance to the findings of Alexander (1993), who argued that different building types were associated with density ranges with upper and lower limits. Interviews with the lead architects illuminated the reasoning behind the design of each scheme. Sociability was a common concern but was not always a driving principle. In the case of Royal Road, a desire to preserve existing trees pulled the boundaries of the courtyard block away from the site's edges, thus squeezing the shared space at its center. Meanwhile at Wharf Road, the layout of the scheme was arranged to optimize views and access to the canal basin. These overarching decisions impacted the eventual performance of each development. The “E-Shaped” building layout at Wharf Road increased the publicness of its garden wharves, thus creating harsh public-private interfaces in some locations. In the same vein, the size and level of enclosure of the courtyard space at Royal Road reduced its appeal to a wider range of residents. To ensure future developments encourage social interaction, the following findings must lead the design process of high-density development rather than be subservient to other goals.
Figure 13

Cross-case ground floor plan comparison (to scale).
All three developments successfully moderated the frequency of residents' interactions. Despite the density of these schemes, none of the interviewees reported feeling overcrowded. As each development adopts a chiefly hierarchal form, being compartmentalized into discrete blocks and limiting the number of apartments per floor, these findings provide support for the research of Valins and Baum (1973) who argued that this approach prevents unwanted social interactions and social withdrawal. Nonetheless, the evidence both supported and contradicted the notion that a hierarchal urban form would encourage residents to act as stewards of their shared environment and foster a sense of belonging (Newman, 1972). This type of behavior was only observed amongst the residents at 95 Peckham Road, Babbage Court at Royal Road, and in blocks C and D at Wharf Road. These micro-communities, whose boundaries were physically demarcated, were 33, 20, and 34 apartments in size, and residents felt a sense of community within them. Facilitated by social media, these groups shared belongings and discussed issues relating to the maintenance of their properties and communal spaces. Since nearly all of these residents were living in shared-ownership or private properties, this indicates that cooperation between residents to take care of their shared environment is more greatly influenced by ownership than design. Social tenants did not create similar governance arrangements despite living in the same context. Yet, it was shown that an urban form which compartmentalizes residents into smaller groups does allow for collective stewardship of shared spaces.
Existing literature states that communal spaces can provide opportunities for social interaction if they have the right arrangement and are flexible, amenable environments (Williams, 2005). This multiple case study provided support for this in the specific context of high-density development in London. At Wharf Road and Royal Road, relatively small and enclosed communal spaces were shared by around 100 apartments, many of which were family homes. These spaces were most used by children, who played in them regularly when parents felt comfortable leaving them unsupervised. This was also the case at Royal Road, where communal space was relatively secure and well overlooked, but not at Wharf Road, where the garden wharves were publicly accessible, and the canal basin presented a risk. Older residents spent very little time dwelling in these spaces and preferred to utilize their private outdoor amenity spaces. On the contrary, the rear courtyard at 95 Peckham Road, which was shared by just 33 apartments, was much more heavily utilized by this demographic. Despite the provision of high-quality private amenity for all apartments, this communal area acted as the stage for gardening, homeworking, regular intimate social gatherings between courtyard residents, and less frequent larger gatherings open to the whole development. These findings re-ignite the argument that to establish strong social ties, our built form should be guided by human psychology and create spaces beyond the private home that are shared by a smaller number of households (Wu and Ge, 2020). Acknowledging the impact of “number,” proximity, and visual connections to communal spaces impacted residents' use of them in all cases. Those who could see them and were nearby used them more often.
Ground floor apartments often enjoy proximity and a visual connection to communal spaces. However, being too close to the action can cause discomfort to these residents. This is especially the case in high-density schemes, where architects seek to maximize the development potential of a site by pushing buildings up to its boundaries, and semi-public areas are relatively active. Dovey and Wood (2015) argued that public private interfaces can be mediated by sandwiching semi-private space between the two, though the evidence detailed here suggests this is an oversimplification. At Wharf Road, regular public use of the garden wharves made residents in ground floor flats feel uncomfortable, despite the provision of a shallow strip of defensible, semi-private space. Its lack of depth combined with the size of apartments' low-lying windows contributed to feelings of exposure. This indicates that to achieve privacy in these locations, the interplay of several physical (e.g., height and size of the windows and depth of semi-private space), and contextual (e.g., level and type of activity in the adjacent space) factors must be considered. Privacy is essential for interaction because subjecting individuals to an endless series of unwanted interactions can force social withdrawal (Valins and Baum, 1973).
The evidence also suggests that semi-private buffers are only utilized by residents, thus provide “options for active contact into adjacent public space” and room for individual expression when the conditions are perfect (Skjaeveland et al., 1996, p. 193, Abu-Ghazzeh, 1999). Along Peckham Road, these spaces showed little signs of use. Despite being south facing, they fronted a noisy and polluted vehicular road which was accompanied by a constant flow of pedestrians. The idea that residents might sit outside and converse with anonymous passer-by's is misinformed here, whatever the weather. At Royal Road, where the roads at its boundaries were quieter, weather became the determining factor. The south facing front gardens were filled with garden furniture and potted plants, a clear indication of regular use. Meanwhile, the ever-dark north-facing front gardens were unkept and used for storage. These findings repeat Jan Gehl's diagnosis for active communal spaces in a different setting; front or back gardens will only be used by residents if they allow you to enjoy good weather, have attractive views, and are not subject to environmental stressors (e.g., noise and air pollution) (Gehl, 2001, p. 171). Unless they are used, they will not provide the opportunity for resident-to-resident interactions.
Respondents disclosed that the majority of resident-to-resident interactions occurred when traveling to and from their homes, such as when passing a resident who is lingering in their front garden. To best evaluate how design can support the quality of these interactions, it helps to consider internal and external circulation spaces independently. Inside multi-story apartment blocks, residents often crossed paths outside the lift. At Royal Road, where this space was naturally ventilated and filled with daylight, residents felt comfortable stopping for a conversation. However, the internalized cores at 95 Peckham Road and Wharf Road had a unitary function—movement—and interactions were more fleeting here. Alexander et al. (1977, p. 633) may have considered the short, turning corridors at Royal Road, framing long views over London at their corners, as “a place of beauty.” In divergence, those at Wharf Road and 95 Peckham Road appeared to emerge from the common desire of contemporary developers to minimize the size and quality of these spaces in pursuit to high net-to-gross ratios (Mclennan and Avramovic Oldani, 2018). It has been argued that naturally ventilated and lit circulation spaces improve wayfinding and perceptions of security (Kennedy, 2015). The extent to which these benefits have been achieved at Royal Road is unclear, though it does provide a strong precedent for how circulation spaces in multi-story apartment buildings can be externalized for the benefit of sociability.
Externally, the frequency of casual interactions was greatest in cases where shared paths intersected with communal spaces. The evidence indicates that this can be achieved by maximizing the number of individual front doors opening onto communal areas and ensuring entrances to apartment blocks require you to walk through these spaces. The influence of the former was particularly evident in the two garden wharves at Wharf Road, and the small communal courtyard at 95 Peckham Road. These shared spaces supported frequent, low intensity contacts in a sheltered setting, which helped to nurture a sense of community and belonging. However, these two developments also exemplified the consequences of locating entrances to apartment blocks away from communal areas. That is, residents belonging to these blocks used these spaces less frequently and were deprived of its social benefits. These findings are not novel, but reiterate the conclusions of cohousing researchers regarding the optimum arrangement of routes and spaces (Durrett and McCamant, 1989; Fromm, 1991). Additionally, they support the argument of Jacobs (2016) who felt that the net sum of these low intensity contacts amounted to invaluable social capital.
Communal facilities, like circulation spaces, have a functional purpose and are recognized as strong predictors for the location of neighborly interactions in residential areas (Lang, 1987). Analysis of the lived experiences of residents the high-density developments studied underlined the social value of bike stores. To some respondents, the bike store was their greatest source of resident-to-resident interaction. Visits to bin stores tended to be non-periodic, infrequent, and short in duration, thus limiting opportunities for social contact. Contrarily, residents spent a greater amount of time inside the bike store, and did so at a similar time each day—e.g., en route to or returning from work. Notably, it must be well-designed in order to have a social benefit. At Wharf Road and Royal Road, many of the bike stores were publicly accessible and poorly secured. They were vulnerable to vandalism and theft as a result, which led residents to store their bikes separately on their balconies or in their hallways. Conversely, the bike store at Peckham Road was internalized and accessed off a reasonably sized entry hallway on the ground floor. In addition to being a safe, securitised, and well used space, its location created the possibility for encounters between those traveling by bike and on foot. In conclusion, the potential of bike stores promote sociability should not be underestimated. However, in order to realize this potential they must be secure, internalized, and located off of shared paths.
Ultimately, the findings of this research should only be considered in recognition of its limitations. To begin with, between March 2020 and the time of writing, government restrictions were enforced periodically which inhibited residents from spending time together. This will have had a significant impact on the experiences of residents at 95 Peckham Road and Wharf Road in particular who moved into their residences during the summer of 2019. Nonetheless, these interviewees were able to comment on their behavior before the pandemic and during periods of relaxed restrictions. Secondly, just three case studies were undertaken and only a small number of residents were interviewed from each development. This will affect the generalisability of the results both within and across cases. Though, given that the research design necessitated speaking to each of the residents at length and transcribing these conversations, it was not possible to collect more data during the period of the study. Finally, this research was conducted in the urban context of London meaning its conclusions may not be directly applicable in other locations. This is underlined by the impact of socio-cultural factors on social interaction, which vary geographically. The next section provides a clear response to the research question, summarizes and reflects on its findings, highlights the new knowledge that this study has contributed, and makes recommendations for future work.
Statements
Data availability statement
The raw data supporting the conclusions of this article will be made available by the authors, without undue reservation.
Ethics statement
Ethical review and approval was not required for the study on human participants in accordance with the local legislation and institutional requirements. The patients/participants provided their written informed consent to participate in this study.
Author contributions
Both authors listed have made a substantial, direct, and intellectual contribution to the work and approved it for publication.
Conflict of interest
The authors declare that the research was conducted in the absence of any commercial or financial relationships that could be construed as a potential conflict of interest.
Publisher’s note
All claims expressed in this article are solely those of the authors and do not necessarily represent those of their affiliated organizations, or those of the publisher, the editors and the reviewers. Any product that may be evaluated in this article, or claim that may be made by its manufacturer, is not guaranteed or endorsed by the publisher.
References
1
Abu-Ghazzeh T. M. (1999). Housing layout, social interaction, and the place of contact in abu-nuseir, Jordan. J. Environ. Psychol.19, 41–73. 10.1006/jevp.1998.0106
2
Alexander C. Alexander P. D. A. C. Ishikawa S. Silverstein M. Jacobson M. Structure C. F. E. et al . (1977). A Pattern Language: Towns, Buildings, Construction. New York, NY: Oxford University Press
3
Alexander E. R. (1993). Density measures: a review and analysis. J. Archit. Plann. Res.10, 181–202.
4
Alzaanin E. I. Dr. (2020). Combining case study design and constructivist grounded theory to theorize language teacher cognition. Qual. Rep.25, 1361–1376. 10.46743/2160-3715/2020.4047
5
Architect A (2021). Designing for Social Interaction at High Density: A Conversation about 95 Peckham Road. In MellenH. (ed.).
6
Architect B (2021). Designing for Social Interaction at High Density: A Conversation about Royal Road. In MellenH. (ed.).
7
Architect C (2020). Designing for Social Interaction at High Density: A Conversation about Royal Road. In MellenH. (ed.).
8
Barriball K. L. While A. (1994). Collecting data using a semi-structured interview: a discussion paper. J. Adv. Nurs.19, 328–335. 10.1111/j.1365-2648.1994.tb01088.x
9
Brown N. Barber P. Moussavi F. Macintosh K. Architects W. W. M. (2018). Project Interrupted: Lectures by British Housing Architects. Washington, DC: Architecture Foundation.
10
Creswell J. W. (2003). Research Design: Qualitative, Quantitative, and Mixed MethodsApproaches. Thousand Oaks, CA: SAGE Publications.
11
DeJonckheere M. Vaughn L. M. (2019). Semistructured interviewing in primary care research: a balance of relationship and rigour. Fam. Med. Community Health7, e000057. 10.1136/fmch-2018-000057
12
Dovey K. Wood S. (2015). Public/private urban interfaces: type, adaptation, assemblage. J. Urban.8, 1–16. 10.1080/17549175.2014.891151
13
Durrett C. McCamant K. (1989). Cohousing: A Contemporary Approach to Housing Ourselves. Berkeley, CA: Ten Speed Press.
14
Eisenhardt K. M. (1989). Building theories from case study research. Acad. Manag. Rev.14, 532–550. 10.2307/258557
15
Flowerdew R. (2009). Probabilism, in International Encyclopedia of Human Geography, ed KobayashiA., 2nd ed.Oxford: Elsevier. 10.1016/B978-0-08-102295-5.10729-2
16
Fromm D. (1991). Collaborative communities. New York, NY: Van Nostrand.
17
Gehl J. (2001). Life Between Buildings: Using Public Space/Jan Gehl.Transl. by J. Koch. Copenhagen: Danish Architectural Press.
18
Gehl J. Svarre B. (2013). How to Study Public Life. Washington, DC: Island Press. 10.5822/978-1-61091-525-0
19
Gersick C. J. (1988). Time and transition in work teams: toward a new model of group development. Acad. Manag. J.31, 9–41. 10.2307/256496
20
Glaser B. G. Strauss A. L. and Press, S. (1967). The Discovery of Grounded Theory: Strategies for Qualitative Research. London: Aldine Publishing Company.
21
Guillery P. Kroll D. (2019). Mobilising Housing Histories: Learning from London's Past for a Sustainable Future. London: RIBA Publishing. 10.4324/9780429346149
22
HDA (2020). Wharf Road [Online]. Housing Design Awards (HDA). Available online at: https://hdawards.org/scheme/6571_scheme-2/ (accessed September 7, 2021).
23
HTA LEVITT BERNSTEIN, PRP, and PTEA. (2007). Recommendations for Living at Superdensity.
24
Jacobs J. (2016). The Death and Life of Great American Cities. New York, NY: Vintage. 10.1002/9781119084679.ch4
25
Johnston K. (2019). Peckham Architecture Award Winner Announced... [Online]. Southwark News. Available online at: https://www.southwarknews.co.uk/news/peckham-architecture-award-winner-announced/ (accessed September 7, 2021).
26
Kennedy R. (2015). The path less travelled: vertical circulation spaces in apartment buildings in the subtropics, in Proceedings of the International Conference on Dwelling Form 2015. (Depok City: Department of Architecture, Faculty of Engineering, Universitas Indonesia), 107–123.
27
Lang J. T. (1987). Creating Architectural Theory: The Role of the Behavioral Sciences in Environmental Design. New York, NY: Van Nostrand Reinhold Company.
28
Laws K. Mcleod R. (2004). Case study and grounded theory: Sharing some alternative qualitative research methodologies with systems professionals, in Proceedings of the 22nd International Conference of the Systems Dynamics Society. p. 1–25. Available online at: https://proceedings.systemdynamics.org/2004/SDS_2004/PAPERS/220MCLEO.pdf
29
Laws K. McLeod R. (2004). Case study and grounded theory: sharing some alternative qualitative research methodologies with systems professionals, in Proceedings of the 22nd International Conference of the Systems Dynamics Society, 1–25.
30
LB ISLINGTON (2014). Planning Committee Report. Wharf Road P2014-2131-FUL.
31
Leavy P. (2017). Research Design: Quantitative, Qualitative, Mixed Methods, Arts-Based, and Community-Based Participatory Research Approaches. New York, NY: Guilford Publications.
32
Levitt D. McCafferty J. (2018). The Housing Design Handbook: A Guide to Good Practice. Oxfordshire: Taylor and Francis. 10.4324/9780203704516
33
Mclennan J. Avramovic Oldani K. (2018). Architecture of the in-between. Love + Regeneration. Bainbridge Island, WA: McLennan Design.
34
Merriam S. B. Tisdell E. J. (2015). Qualitative Research: A Guide to Design and Implementation. New York, NY: Wiley.
35
Newman O. (1972). Defensible Space. New York, NY: Macmillan.
36
Ng E. (2009). Designing High-Density Cities: For Social and Environmental Sustainability. Oxfordshire: Taylor and Francis. 10.4324/9781849774444
37
PBA (2016). Peckham Road Mansions Design and Access Statement. London: Peter Barber Architects (PBA).
38
PBA (2021). 95. Peckham Road [Online]. Peter Barber Architects (PBA). Available online at: http://www.peterbarberarchitects.com/peckham-road (accessed September 7, 2021).
39
PHA (2018). Royal Road Booklet. London: Panter Hudspith Architects (PHA).
40
PTE (2015). 37–47. Wharf Road Design and Access Statement, March (2015). London: Pollart Thomas Edwards (PTE).
41
PTE (2021). Wharf Road [Online]. Pollard Thomas Edwards (PTE). Available online at: https://www.pollardthomasedwards.co.uk/projects/index/wharf-road/ (accessed September 7, 2021).
42
Ravenscroft T. (2020). Peter Barber Architects Creates Terraced Tenement Block in Peckham. London: Dezeen.
43
Resident A (2021a). What is it Like to Live at 95 Peckham Road? In: MellenH. (ed.).
44
Resident A (2021b). What is it Like to live at Royal Road? In: MellenH. (ed.).
45
Resident B (2021a). What is it Like to Live at Royal Road? In: MellenH. (ed.).
46
Resident B (2021b). What is it Like to Live at Wharf Road? In: MellenH. (ed.).
47
Resident C (2021a). What is it Like to Live at 95 Peckham Road? In: MellenH. (ed.).
48
Resident C (2021b). What is it Like to Live at Royal Road? In: MellenH. (ed.).
49
Resident C (2021c). What is it Like to Live at Wharf Road? In: MellenH. (ed.).
50
Resident D (2021a). What is it Like to Live at Royal Road? In: MellenH. (ed.).
51
Resident D (2021b). What is it Like to Live at Wharf Road? In: MellenH. (ed.).
52
Resident E (2021a). What is it Like to Live at 95 Peckham Road? In: MellenH. (ed.).
53
Resident E (2021b). What is it Like to Live at Wharf Road? In: MellenH. (ed.).
54
Resident F (2021). What is it Like to Live at 95 Peckham Road? In: MellenH. (ed.).
55
Resident G (2021). What is it Like to Live at Wharf Road? In: MellenH. (ed.).
56
Resident I (2021). What is it Like to Live at Wharf Road? In: MellenH. (ed.).
57
RIBAJ (2020). 95. Peckham Road, Peckham [Online]. The RIBA Journal (RIBAJ). Available online at: https://www.ribaj.com/buildings/regional-awards-shortlist-2020-london-south-peter-barber-residential-95-peckham-road (accessed September 7, 2021).
58
Ridder H.-G. (2017). The theory contribution of case study research designs. Bus. Res.10, 281–305. 10.1007/s40685-017-0045-z
59
Siggelkow N. (2007). Persuasion with case studies. Acad. Manag. J.50, 20–24. 10.5465/amj.2007.24160882
60
Skjaeveland O. Gärling T. Maeland J. G. (1996). A multidimensional measure of neighboring. Am. J. Community Psychol.24, 413–435. 10.1007/BF02512029
61
Urquhart C. (2012). Grounded Theory for Qualitative Research: A Practical Guide. London: SAGE Publications. 10.4135/9781526402196
62
Valins S. Baum A. (1973). Residential group size, social interaction, and crowding. Environ. Behav.5, 421–439. 10.1177/001391657300500404
63
Williams J. (2005). Designing neighbourhoods for social interaction: the case of cohousing. J. Urban Design10, 195–227. 10.1080/13574800500086998
64
Wu W. Ge X. J. (2020). Communal space design of high-rise apartments: a literature review. J. Design Built Environ.20, 35–49. 10.22452/jdbe.vol20no1.4
65
Yin R. K. (2009). Case Study Research: Design and Methods. London: SAGE Publications.
66
Zimring C. Joseph A. Nicoll G. L. Tsepas S. (2005). Influences of building design and site design on physical activity: research and intervention opportunities. Am. J. Prev. Med.28, 186–193. 10.1016/j.amepre.2004.10.025
67
Zohrabi M. (2013). Mixed method research: instruments, validity, reliability and reporting findings. Theory Pract. Lang. Stud.3, 254–262. 10.4304/tpls.3.2.254-262
Summary
Keywords
social interaction, density, design, architecture, London
Citation
Mellen H and Short M (2023) Designing for social interaction in high-density housing: A multiple case analysis of recently completed design-led developments in London. Front. Sustain. Cities 4:1043701. doi: 10.3389/frsc.2022.1043701
Received
13 September 2022
Accepted
29 December 2022
Published
30 January 2023
Volume
4 - 2022
Edited by
Jie Song, Agency for Science, Technology and Research (A*STAR), Singapore
Reviewed by
Asli Ceylan Oner, Izmir University of Economics, Türkiye; Ah Yusuf, Airlangga University, Indonesia
Updates
Copyright
© 2023 Mellen and Short.
This is an open-access article distributed under the terms of the Creative Commons Attribution License (CC BY). The use, distribution or reproduction in other forums is permitted, provided the original author(s) and the copyright owner(s) are credited and that the original publication in this journal is cited, in accordance with accepted academic practice. No use, distribution or reproduction is permitted which does not comply with these terms.
*Correspondence: Michael Short ✉ michael.short@ucl.ac.uk
This article was submitted to Innovation and Governance, a section of the journal Frontiers in Sustainable Cities
Disclaimer
All claims expressed in this article are solely those of the authors and do not necessarily represent those of their affiliated organizations, or those of the publisher, the editors and the reviewers. Any product that may be evaluated in this article or claim that may be made by its manufacturer is not guaranteed or endorsed by the publisher.