ORIGINAL RESEARCH article
Front. Energy Res.
Sec. Wave and Tidal Energy
Multifield Cavity-Type Revetment System for Generating Wave Energy Power and Protecting the Coast in Beibu Gulf, China
Provisionally accepted- Guangxi Polytechnic of Construction, Nanning, China
Select one of your emails
You have multiple emails registered with Frontiers:
Notify me on publication
Please enter your email address:
If you already have an account, please login
You don't have a Frontiers account ? You can register here
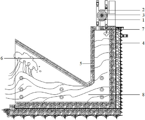
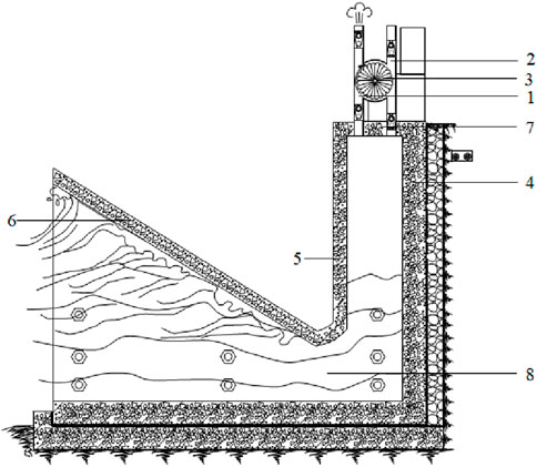
Numerous wave-energy-enhancing systems (WESs) have been developed for advancing global marine energy development. However, WESs face several obstacles, including low efficiency, substantial efficiency fluctuations, and poor impact resistance. A cavity-type breakwater system that protects the coast and generates wave power generation functions was developed for deployment in Beibu Gulf, China, to address these obstacles. A full-chain energy conversion model encompassing wave dynamics, hydropneumatics, and electromechanical conversion was designed and used in physical experiments. A wave particle motion model was established using the three-dimensional nonlinear Stokes wave theory to study the wave characteristics. The improved Goda formula was used to calculate the impact force of the waves: a 55°-inclined breakwater panel generated a peak pressure of 215 kPa. A transient flow model was developed and applied for pressurized water channels showing that the single-impact flow rate was 12.7 m³/s with a channel diameter and length of 0.8 and 3.2 m, respectively. ANSYS Fluent fluid–structure interaction simulations were conducted, which verified that the air chamber pressure fluctuated between 18.6 and 248 kPa, the turbine speed stabilized at 1120 ± 210 rpm, and the average annual output power per unit was 38.7 kW. A four-stage efficiency chain model was developed, achieving an overall conversion efficiency of 12.6%. Deploying 500 units in Beibu Gulf along with policy guidance could generate 274 million kWh of electricity annually, reducing the levelized cost of electricity from 0.453 to 0.422 CNY/kWh, with a payback period of 6.8 years. This study provides theoretical support and indicates the technical pathways for the coordinated development of coastal engineering and renewable energy.
Keywords: Cavity revetment system, Wave energy conversion efficiency, coupled hydropneumatic model, Beibu Gulf area, hydropneumatic wave power generation
Received: 23 May 2025; Accepted: 10 Nov 2025.
Copyright: © 2025 Wei, Yang and Yang. This is an open-access article distributed under the terms of the Creative Commons Attribution License (CC BY). The use, distribution or reproduction in other forums is permitted, provided the original author(s) or licensor are credited and that the original publication in this journal is cited, in accordance with accepted academic practice. No use, distribution or reproduction is permitted which does not comply with these terms.
* Correspondence: Yang Yang, sxwcyyy@163.com
Disclaimer: All claims expressed in this article are solely those of the authors and do not necessarily represent those of their affiliated organizations, or those of the publisher, the editors and the reviewers. Any product that may be evaluated in this article or claim that may be made by its manufacturer is not guaranteed or endorsed by the publisher.
