ORIGINAL RESEARCH article
Front. Mater.
Sec. Structural Materials
Mechanism of Frost Heave Cracking in PHC Pipe Piles: An Experimental and Numerical Investigation
Provisionally accepted- 1Shandong Electric Power Engineering Consulting Institute Corp Ltd, Shandong, China
- 2Tianjin University, Tianjin, China
- 3Politecnico di Torino, Turin, Italy
Select one of your emails
You have multiple emails registered with Frontiers:
Notify me on publication
Please enter your email address:
If you already have an account, please login
You don't have a Frontiers account ? You can register here
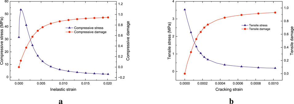
Vertical cracks in Prestressed High-strength Concrete (PHC) pipe piles caused by internal frost heaving endanger the safety and operational efficiency of photovoltaic facilities in cold regions. However, the underlying failure mechanisms remain insufficiently understood. This study investigates the cracking process by combining laboratory experiment with Finite Element Analysis (FEA) using the Concrete Damage Plasticity (CDP) model. The results reveal a distinct cracking mechanism: In the experiment of this article, initiated at a temperature threshold of -5 ◦C to -8 ◦C, cracks consistently originate at the projection of prestressed tendons on the inner wall. These locations act as structural weak points where the concrete's tensile strength is first exceeded. The subsequent failure is brittle, characterized by synchronous axial propagation and a guided, inside-out radial development along the tendons. A parametric analysis further reveals that increasing the concrete strength, axial prestress level and wall thickness are effective strategies for enhancing cracking resistance by delaying both crack initiation and propagation. Applying external radial prestress is also a highly effective protective measure. The findings of this study can provide a basis for optimizing the anti-freezing design and protection of PHC piles.
Keywords: PHC pipe pile, concrete cracking, Frost heave, cold environment, finite element simulation
Received: 28 Aug 2025; Accepted: 09 Oct 2025.
Copyright: © 2025 Zhang, Wu, Yin, Jia, Lacidogna and Xu. This is an open-access article distributed under the terms of the Creative Commons Attribution License (CC BY). The use, distribution or reproduction in other forums is permitted, provided the original author(s) or licensor are credited and that the original publication in this journal is cited, in accordance with accepted academic practice. No use, distribution or reproduction is permitted which does not comply with these terms.
* Correspondence: Jie Xu, jxu@tju.edu.cn
Disclaimer: All claims expressed in this article are solely those of the authors and do not necessarily represent those of their affiliated organizations, or those of the publisher, the editors and the reviewers. Any product that may be evaluated in this article or claim that may be made by its manufacturer is not guaranteed or endorsed by the publisher.
